Anlagenlayout
Herausforderungen bei der Planung biomassebasierter Energieanlagen:
Flächenbedarf und Logistik
Erneuerbare, Biomasse basierte Energiestandorte haben einen hohen Flächenbedarf. Dies gilt insbesondere beim Einsatz von Hackschnitzel.
Neben den Kernanlagen wie Kessel und Maschinentechnik sind Trockner, Vorratsbunker und sonstige Logistikflächen erforderlich. Das sind nicht unerhebliche Investitionen. Gleichzeitig schränken diese Voraussetzungen die Freiheitsgrade für die Standortwahl ein. Eine direkte Ansiedlung in der Nähe der Energieverbraucher ob Industrie oder Wohnquartiere ist nicht möglich.
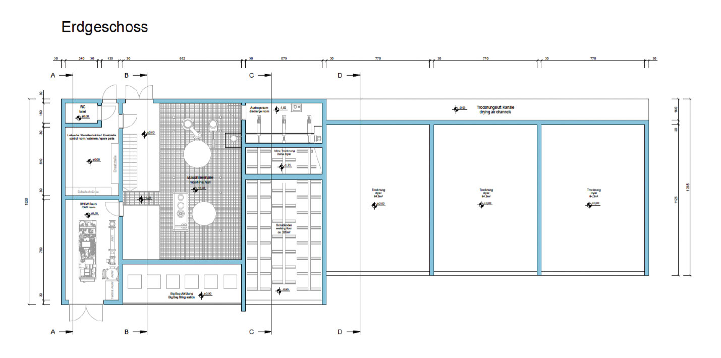
Beispielhaft seien die Aufteilungsverhältnisse mit Daten der Syncraft-Anlage in Innsbruck angeführt.


So umfassen Logistik und Trocknung der Hackschnitzel mehr als 60 % von Fläche und Gebäudevolumen.

Eine wesentliche Verkleinerung ist durch den Einsatz von standardisiertem, vorgetrocknetem Brennmaterial, sogenannte Brikletts möglich.

Voraussetzung ist eine zweistufige Anlieferstruktur, bei der eine Zentrale /Hub eine Vielzahl dezentraler Satelliten versorgt. Realisiert wird ein effiziente Schüttcontainerverkehr

Eine weitere Optimierungsmöglichkeit bietet die Entwicklung standardisierter Carbonbetongebäude in Fertigbauweise. Vorteile und insbesondere deutliche Effizienzverbesserung dieses Sytemaufbaus könnn in der nachfolgender Wirtschaftlichkeitsrechnung gezeigt werden.
